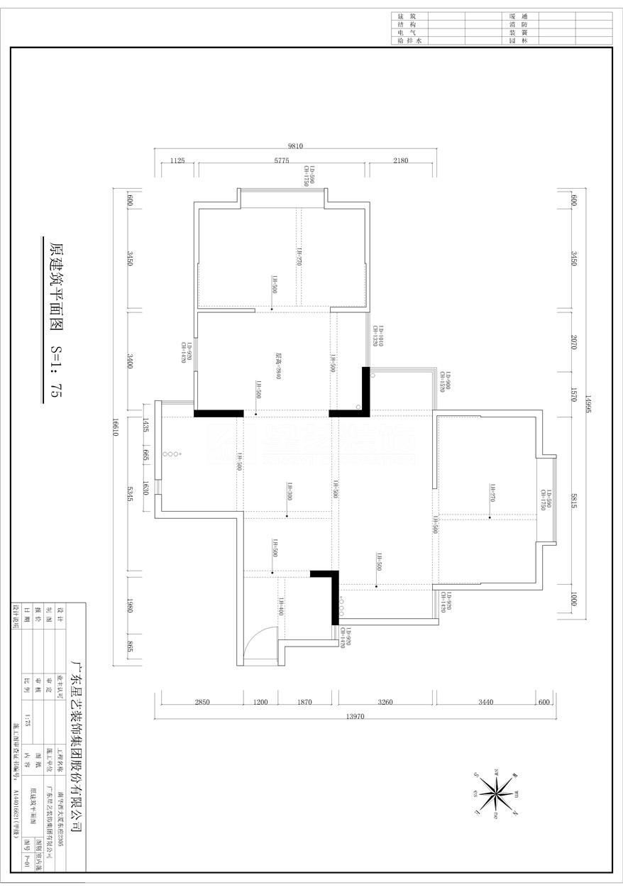
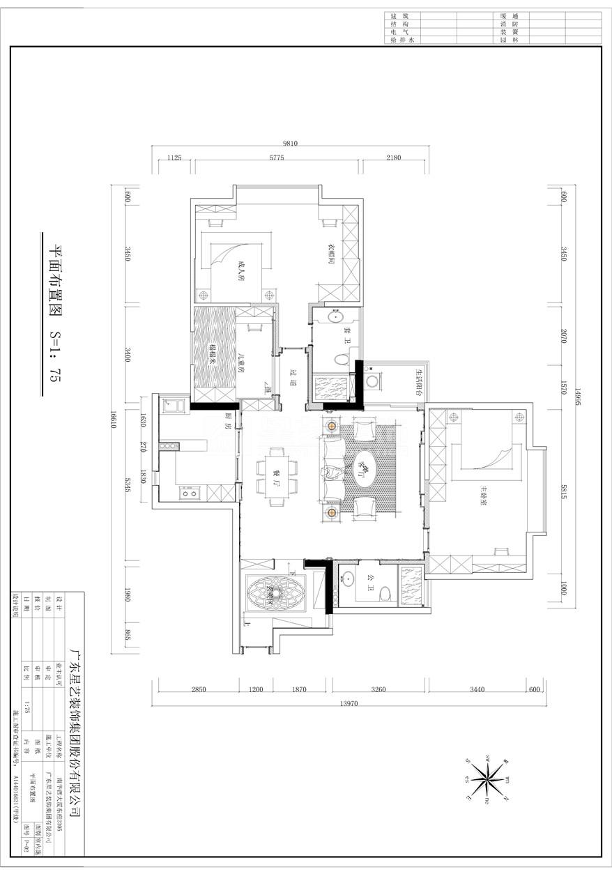
方案展示
-
徐德成的其它設計案例
-
歐式風格的其它設計案例
關注我們
分享到
微信

立即預約
在線咨詢
在線客服
公安部備案號 44010602004978號